
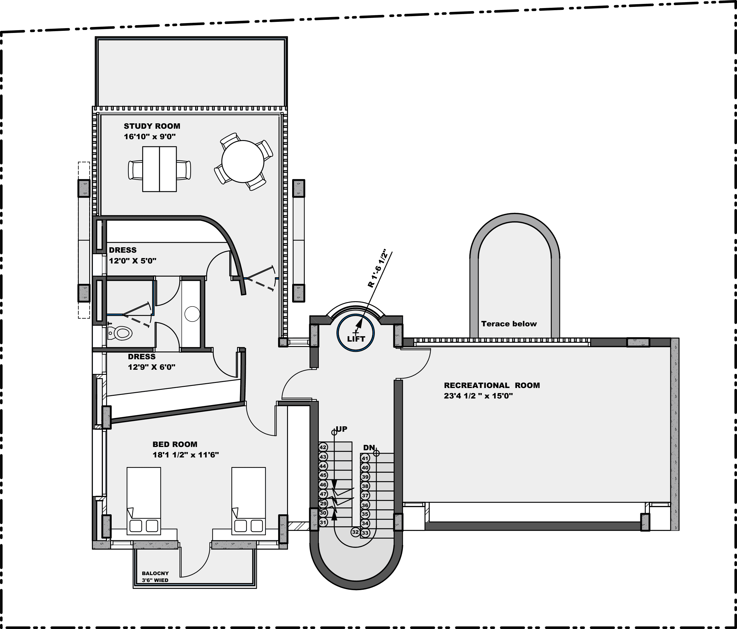
DISTORTED HOUSE
Layout is planned in such a way that natural light can be illuminated in all the areas with lots of greens. A home that balances simplicity, warmth and comfort Crafted with care for a family who values natural light and connectivity. This Residence Is Located in Posh Are of Manjalpur, House Is Made with Sloping Outer Walls and Curved Walls. Featuring flexible spaces for optimized functionality and modern living. spacious planning giving importance to each and every space functionally according to use. Cantilevered open terrace Special structure is designed for the building. Structure in Replacement Of R.C.C Beam. Hollow C.I Pipe Is Used to Expose Is Like a Cantilever Support.
Client
MR.PRAGNESH PARIKH
Client
MR.PRAGNESH PARIKH
Location
MANJALPUR,VADODARA
Location
MANJALPUR,VADODARA
Size
4500 sq.ft.
Size
4500 sq.ft.
Type
Private Residence
Type
Private Residence
Category
Architecture
Category
Architecture
Services
ARCHITECTURE
Services
ARCHITECTURE
Year
2023
Year
2023
Status
Complete
Status
Complete
Project Gallery
Project Gallery
Project Gallery
Revealing the Blueprint Journey: An Exhibition of Our Successful Efforts
Revealing the Blueprint Journey: An Exhibition of Our Successful Efforts
Revealing the Blueprint Journey: An Exhibition of Our Successful Efforts
Commence a visual expedition via our completed ventures, every single one epitomizing our unflinching devotion towards design dominance.
Commence a visual expedition via our completed ventures, every single one epitomizing our unflinching devotion towards design dominance.
Commence a visual expedition via our completed ventures, every single one epitomizing our unflinching devotion towards design dominance.
THIS IS A CAPTION

THIS IS A CAPTION

THIS IS A CAPTION

THIS IS A CAPTION

THIS IS A CAPTION

THIS IS A CAPTION

THIS IS A CAPTION

THIS IS A CAPTION

THIS IS A CAPTION

THIS IS A CAPTION

THIS IS A CAPTION

THIS IS A CAPTION

THIS IS A CAPTION

THIS IS A CAPTION

THIS IS A CAPTION

THIS IS A CAPTION

THIS IS A CAPTION

THIS IS A CAPTION

THIS IS A CAPTION

THIS IS A CAPTION

THIS IS A CAPTION

THIS IS A CAPTION

THIS IS A CAPTION

THIS IS A CAPTION

THIS IS A CAPTION

THIS IS A CAPTION

THIS IS A CAPTION

THIS IS A CAPTION

THIS IS A CAPTION

THIS IS A CAPTION

Other Projects
Other Projects
Other Projects
OTHER PROJECTS YOU mAY FEEL INSPIRING
OTHER PROJECTS YOU mAY FEEL INSPIRING
OTHER PROJECTS YOU mAY FEEL INSPIRING
We're honored to have partnered with these reputable organizations on impactful architectural projects through the decades.
We're honored to have partnered with these reputable organizations on impactful architectural projects through the decades.
We're honored to have partnered with these reputable organizations on impactful architectural projects through the decades.

LET'S TALK
ASK A QUESTION
GET IN TOUCH
PHONE
+91 97239 98397
VISIT US
Meghdoot society, 76/A, Arya Kanya Rd, opp. Viroc super specialty hospital, Karelibagh, Vadodara, Gujarat 390018
SEE ON MAP
Get a free quote
We're excited to connect with you! Fill out the form below, and let's embark on the journey of turning your vision into a reality.
Services
Projects
Template

LET'S TALK
ASK A QUESTION
GET IN TOUCH
PHONE
+91 97239 98397
VISIT US
Meghdoot society, 76/A, Arya Kanya Rd, opp. Viroc super specialty hospital, Karelibagh, Vadodara, Gujarat 390018
SEE ON MAP
Get a free quote
We're excited to connect with you! Fill out the form below, and let's embark on the journey of turning your vision into a reality.
Services
Projects
Template

LET'S TALK
ASK A QUESTION
GET IN TOUCH
PHONE
+91 97239 98397
VISIT US
Meghdoot society, 76/A, Arya Kanya Rd, opp. Viroc super specialty hospital, Karelibagh, Vadodara, Gujarat 390018
SEE ON MAP
Get a free quote
We're excited to connect with you! Fill out the form below, and let's embark on the journey of turning your vision into a reality.



